Exposé 300100

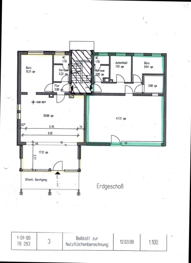
Grundiss aus dem Bauplan

Praxis, Büro, Agentur, Filiale inWürzburg-Heidingsfeld - RESERVIERT

  • Objekt-Nr:
    300100
  • Immobilienart:
    Büro / Praxis
  • Vermarktungsart:
    Miete
  • Adresse:
    97084 Würzburg-Heidingsfeld
  • Region:
    Deutschland

Details zur Immobilie

Preise

  • Kaltmiete: 700,00 EUR
  • Nettokaltmiete: 700,00 EUR
  • Warmmiete: 950,00 EUR
  • MwSt-Satz: 0
  • Mehrwertsteuer: 0,00 EUR
  • Betriebs-/ Nebenkosten: 250,00 EUR
  • Nebenkosten inkl. Heizkosten: ja
  • Preis verhandelbar: nein
  • Abstand: 500,00 EUR
  • Stellplatzmiete: 50,00 EUR
  • Pflicht zur Stellplatzübernahme: nein
  • Kaution: 2500
  • Kautionsbetrag: 2.500,00 EUR
  • Courtage inkl. Mwst: ja
  • provisionspflichtig: nein

Flächen

  • Gesamtfläche: ca. 77 m²
  • Zimmerzahl: 3
  • Anzahl separater WC's: 1
  • Gewerbefläche: ca. 77 m²
  • Anzahl Stellplätze: 1
  • vermietbare Fläche: ca. 77 m²
  • vermietete Fläche: ca. 77 m²

Ausstattung

  • Art der Ausstattung: normal
  • Etage: EG
  • Heizungsart: Zentralheizung
  • Bodenbelag: Fliesen, Kunststoff, Laminat
  • Küche: Einbauküche, kleine Küche, mit Geschirrspüler
  • barrierefrei: ja
  • Keller: ja

Umfeld

  • nächste Stadt: Würzburg
  • Gebiet: Siedlung
  • Distanz zum Bus: ca. 0,1 km
  • Distanz zum Fernbahnhof: ca. 4 km
  • Distanz zum Flughafen: ca. 110 km
  • Distanz zur Autobahn: ca. 4 km
  • Distanz zum Zentrum: ca. 1,5 km

Zustandsangaben

  • Zustandsart: teilweise renoviert
  • Sanierungsjahr: 1999

Verwaltung

  • Nutzungsart: Gewerbe
  • Preis Zeitraum von: 01.01.2026
  • Preis Zeitraum bis: 31.12.2028
  • verfügbar ab: 01. Jan. 2026
  • verfügbar ab: 01.01.2026
  • verfügbar bis: unbefristet - Mindestens jedoch 3 Jahre!
  • Zugang zum Objekt ab: nach Absprache
  • Räume veränderbar: teilweise
  • Branchen: Ärzte, Therapeuten, Versicherungen,Beratungsbüro, Dienstleistungen, Servicebüro, Friseur, Kosmetik. Podologie, Seminare, Schulungen, EDV, Softwarebüro, Ergotherapie, Logopädie, Krankengymnastik
  • Stand vom: 06.11.2025

Energieausweis

  • Energieausweis vorhanden: nein